May 2024-Barcelona, Spain.
REAL ESTATE FEVER, CASTELLDEFELS
Real estate fever on the lower Llobregat coastline of Barcelona province is generating new business opportunities. Castelldefels is strongly positioned as an upwardly trending reference destination when it comes to buying real estate, with strong demand & an established international community.
A coastal town near Barcelona, Castelldefels, in the lower Llobregat region, which attracts visitors of all nationalities looking for sun, sea, wind & quality of life, is a town open to the sea, is well connected by road, train & bus, and is located about 10 minutes from Barcelona International Airport.
The easternmost coast of the Garraf, the Castelldefels sandy area, with 5 km of golden sandy beaches, is located between the protected areas of the Llobregat Delta & the Garraf massif.
The client & owner came to us with the task of selling his family summer house located on a plot where the terraces have cut out the natural profile of the land. With a slope of 12.5 degrees & a surface area of 1,583 m2, a detached single-family house & a swimming pool, both dating from the 1960s, coexist in disuse. A set of the typical Montemar summer house. And with that faculty we decided to provide inputs for sale.
As the plot has a gentle slope & is stepped on rock, the best way to attract buyers was to analyze the existing & study the feasibility of building, as the price to level the land is very high. And we examined the options of rehabilitating & extending; demolishing, converting the slopes into floors & the garden into a decorative resource & building 2 detached houses with a surface area of 581 square meters each; and demolishing & building a detached house of 1,152 square meters.
Planning qualification 20a/10 – buildability 0.75 – maximum occupancy 30%.

With more than 15 neighbourhoods in Castelldefels, Montmar or Montemar, close to the centre & to the west, is a mountain residential area away from the heart & surrounded by the Garraf park. It is divided into Montemar Alto & Montemar Bajo. Undoubtedly, the privileged views to the sea, an element that should be taken advantage to the maximum, and the Garraf natural park, is one of its strong points.


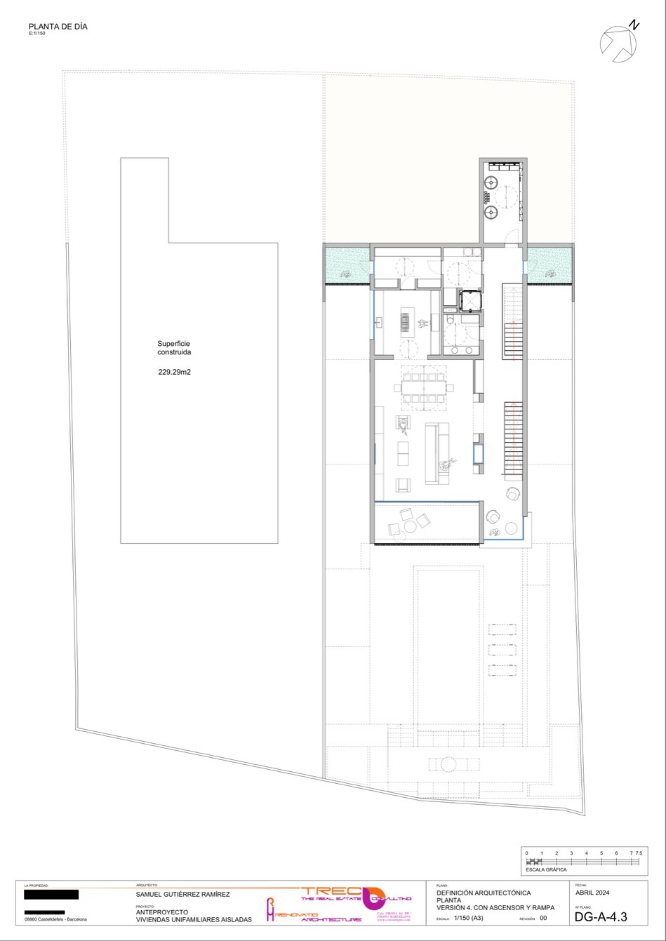
Access floor at street level
We draw up a preliminary draft creating multiple versions freely customized to develop a real estate promotion of two detached single-family houses with an area of 581 m2 each, which offers a higher profitability. These houses with swimming pool are surrounded by garden with panoramic views towards the sea. They adapt to the staggered topography of the site, unfolding over several levels that are aligned with the natural contours of the ground.
The functional programme of these vertically- built spaces with a Mediterranean architecture houses the sea-views covered garage & gym equipment with sauna on the access floor at street level, easily accessible by car & pedestrian access; service area, a small library (multi-purpose room) & living-dining room with panoramic terraces overlooking the coastline on the intermediate day floor, and the kitchen between these two volumes, which acts as a filter; and four bedrooms with full bathrooms on the night floor, which rests on the large garden, with swimming pool & chill-out area at the end of the route.

West elevation & section

East elevation & section
To construct these with an average quality, the approximate construction price is 1.016.750,00 euros (always from) per dwelling based on the mean construction price per square meter of surface area (for houses in this category), adding the exterior, taxes not included. This price does not include technical fees, management, municipal & administrative costs or the demolition of the existing house.
Landscaping research. Rather than being seen as a disadvantage, uneven ground & slopes offer more possibilities than flat ground. Stairs with sleepers, stone stairs with moss, a design of ramps, stairs & play areas that favour a change of aesthetics & integration with the environment; in short, they are also provided with landscaped spaces to create visual & acoustic barriers.
Architectural language on a slope. We considered three factors that we take into account when designing on asymmetrical slopes where the structure must adapt to the environment, intervening as little as possible & making the most of each element.
1) Be in touch with the scene & play with topography. To generate harmony between the grounds, the proposals & its development, we pay attention to the present to optimize all the available space. To this end and given that there are no natural components to be preserved, we analyzed the possibilities of the sloping terrain & its scope as sales arguments. By understanding the topography of the project, it is more likely that our proposal will be compatible with the human scale. Thus, we can create terraces, balconies, green areas, etc.
2) Earthmoving. In terms of land clearing & earthworks, which always represent an additional cost & thinking about the style of building two detached single-family houses, we decided to cut costs of the works by working on slopes with terraced surfaces.
3) Climate of the site. As water is a precious & scarce commodity nowadays, the roofs will be used to collect rainwater & direct it to an underground tank for the swimming pool & for the irrigation of the garden maintenance. The vertical construction avoids that everything that is on a slope is not damaged by storms & adapts to the area in which we are working. Considering the premises of the climate of the site generates a convenient architectural response to accommodate the area on rainy days & give a unique touch to the project.
When the paths of an empty plot owner & a real estate agent with an interested investor cross, the investor is interested in data that neither party usually knows or masters, such as an update of its urban qualification, what can be developed, building & usage terms, an economic forecast (always approximate prices & from), an approximation of the professional participants & fees, licenses, taxes & other municipal expenses, a list of direct & indirect taxes & fees, a working estimate of the execution time from the purchase of the asset, its market price & profitability, and what expenses of the real estate operation should be taken into account to assess the viability of the investment, among others.

OPTIONS FLOOR
These factors together with the first sketches of a proposal when the product does not yet exist & its impeccable hyper-realistic rendering, are what really push the purchase.
How much does this professional & urban development advice cost? At TREC Barcelona, we know how to do it.
Valuing & turning around the existing constraints of the site turns its limitations into opportunities to exploit our creativity.
At TREC Barcelona, remodelling historic buildings with the necessary mastery to combine stately architecture with contemporary styling while maintaining the elements that form part of their history is one of the jobs we love the most.
Specializing in recovering assets that enhance their authenticity & identity, our main recipe is to master the heritage and, for this & high-level buyers & investors, knowledge is a priority.
Investment & Asset Management, Housing, Interior & Refurbishments, Customized, Sustainable Architecture
Public relations with creative vision & savvy marketing.
DARE TO BE UNIQUE.
All rights reserved. TREC Barcelona & Associates 2024.
Mayo 2024-Barcelona, España.
LA FIEBRE INMOBILIARIA, CASTELLDEFELS
La fiebre inmobiliaria en el litoral del Baix Llobregat genera nuevas oportunidades de negocio. Castelldefels se posiciona enérgicamente como destino de referencia tendente al alza cuando se piensa en la compra de activos inmobiliarios, con una fuerte demanda y una comunidad internacional ya asentada.
Población costera cercana a Barcelona, Castelldefels, en la comarca del Baix Llobregat, que atrae a visitantes de todas las nacionalidades buscando sol, mar, viento y una calidad de vida, es una ciudad abierta al mar, está bien comunicada por carretera, tren y autobús, y se encuentra a unos 10 minutos del aeropuerto internacional de Barcelona.
La costa más oriental del Garraf, el arenal de Castelldefels, con 5 km de playas de arena dorada, se encuentra entre los espacios protegidos del Delta del Llobregat y el macizo del Garraf.
El cliente y propietario nos vino con el encargo de vender su casa familiar de verano ubicada en una parcela con una pendiente de 12,5 grados con una superficie de 1.583m2 en la que coexisten en desuso una vivienda unifamiliar aislada y una piscina, ambas construcciones de los años 60 del siglo pasado. Un conjunto de la típica torreta de veraneo en Montemar. Y con esa facultad decidimos proporcionar inputs a la venta.

Puesto que la parcela tiene una pendiente muy suave y escalonada sobre roca, la mejor forma de atraer compradores era analizar lo existente y estudiar la viabilidad de la construcción, ya que el precio para allanar el terreno es elevadísimo. Y examinamos las opciones de rehabilitar y ampliar; derribar, convertir los desniveles en plantas y al jardín en un recurso decorativo y construir 2 viviendas unifamiliares aisladas de 581 m2 cada una; y derribar y construir una vivienda unifamiliar aislada de 1.152 m2.
Calificación urbanística 20a/10 – edificabilidad 0,75 – ocupación máxima 30%.

Con más de 15 barrios en Castelldefels, Montmar o Montemar, cerca del centro y hacia el oeste, es un barrio residencial de montaña alejado del centro y rodeado por el parque del Garraf. Se divide en Montemar alto y Montemar bajo. Sin duda, las vistas privilegiadas al mar, un elemento que se debe aprovechar al máximo, y al parque natural del Garraf, es uno de los puntos fuertes.


Access floor at street level
Redactamos el anteproyecto con libertad compositiva para el desarrollo de una promoción inmobiliaria de dos viviendas unifamiliares aisladas con una extensión de 581 m2 cada una, que ofrece una mayor rentabilidad. Estas casas con piscina están rodeadas de jardín con unas vistas panorámicas hacia el mar. Se adaptan a la topografía escalonada del lugar desplegándose en varios niveles que se alinean con el contorno natural del terreno.
El programa funcional de estos espacios construidos en vertical con una arquitectura mediterránea alberga el garaje cubierto y gimnasio con sauna
con vistas al mar en la planta de acceso a nivel de calle, con accesos rodado y peatonal; zona de servicio, una pequeña biblioteca (ambiente polivalente) y salón-comedor con terrazas panorámicas hacia el litoral costero en la planta de día intermedia, y la cocina entre esos dos volúmenes, que hace de filtro; y cuatro dormitorios con baños completos en la planta de noche, que descansa sobre el amplio jardín, con piscina y área de chill-out dispuesta al final del recorrido.

West elevation & section

East elevation & section
Para su construcción y contando con una calidad media, el precio de obra aproximado sería de 1.016.750,00 euros (siempre desde) por vivienda basado en el precio medio de construcción (para viviendas de esta categoría) por los m2 de superficie añadiendo el exterior, impuestos a parte. Hablamos de obra solamente, no se contemplan en este precio los gastos técnicos, de gestión, municipales y administrativos ni el derribo de la casa existente.
Estudio del paisajismo. Más que sentirlo como una desventaja, los terrenos con desnivel y las pendientes ofrecen más posibilidades que un suelo plano. Escaleras con traviesas, escalera de piedra con musgos, un diseño de rampas, escaleras y áreas lúdicas que favorezcan un cambio de estética y la integración con el entorno; en definitiva, también se les dota de espacios ajardinados para crear barreras visuales y acústicas.
Lenguaje arquitectónico en pendiente. Tuvimos presentes tres factores que tenemos en cuenta cuando se proyecta en terrenos inclinados asimétricos en donde la estructura debe adaptarse al entorno, interviniendo lo mínimo posible y aprovechando cada elemento.
1) Comunicarse con el entorno y jugar con la topografía. Con la finalidad de generar armonía entre el terreno, las propuestas y su desarrollo, prestamos atención a lo actual para optimizar todo el espacio disponible. Con tal efecto y puesto que son inexistentes los componentes naturales a conservar, analizamos las posibilidades del terreno inclinado y su ámbito como argumentos de venta. Al entender la topografía del proyecto es más probable que nuestra propuesta sea compatible con la escala humana. Así, podemos crear terrazas, balcones, áreas verdes, etc.
2) Movimiento de tierras. En cuanto a la limpieza del terreno y al movimiento de tierras, que siempre representan un coste adicional y pensando en la versión de construir dos casas unifamiliares aisladas, razonamos el reducir los costes de la obra trabajando en pendientes con superficies aterrazadas.
3) Clima del lugar. Como bien preciado y escaso que es el agua hoy día, se aprovecharán las cubiertas como recogida de aguas pluviales para dirigirlas a un depósito subterráneo de la piscina y para el riego del mantenimiento del jardín. La construcción vertical evita que todo lo que esté en pendiente no se vea perjudicado por los temporales y se acomode al ámbito en el que estamos trabajando. Tener en cuenta las premisas del clima del emplazamiento genera una conveniente respuesta arquitectónica para adaptarnos a la zona en días de lluvia y dar un toque singular al proyecto.
Cuando los caminos de un propietario que quiere vender y un agente inmobiliario con un inversor interesado se cruzan, al inversor le importan datos que ninguna de las dos partes suelen saber ni dominar, como son una actualización de su calificación urbanística, qué se puede desarrollar, condiciones de edificabilidad y ocupación, una previsión económica (siempre precios aproximados y desde), una aproximación de intervinientes profesionales y honorarios, de licencias, impuestos y otros dispendios municipales, una enumeración de tasas e impuestos directos e indirectos, un cálculo aproximado del tiempo de ejecución desde la compra del activo, su precio de salida en el mercado y su rentabilidad, y qué gastos de la operación inmobiliaria se deben tener en cuenta para valorar la viabilidad de su inversión, entre otros.

OPTIONS FLOOR
A estos factores en su conjunto se le unen los primeros trazos de una propuesta cuando el producto no existe todavía y su renderización hiperrealista impecable, que son lo que verdaderamente empujan a la compra.
¿Cuánto cuesta este asesoramiento urbanístico y profesional? En TREC Barcelona, sabemos hacerlo.
Valorar y darles la vuelta a las restricciones existentes del solar hace que sus limitaciones se conviertan en oportunidades a la hora de explotar nuestra creatividad.
En TREC Barcelona remodelar edificios históricos con la maestría necesaria para combinar la arquitectura señorial con un estilismo contemporáneo manteniendo los elementos que forman parte de su historia es uno de los trabajos que más adoramos.
Especializados en recuperar activos que pongan en valor su autenticidad e identidad, nuestra receta principal es dominar el patrimonio y, para ello y los compradores e inversores de alto nivel, el conocimiento es una prioridad.
Esa mentalidad, ese objetivo, ese sueño. Constrúyelo.
Todos los derechos reservados. TREC Barcelona & Associates 2024.
Gestión de Inversiones y Patrimonio, Arquitectura, Interiorismo.
[:]









